| 価格 | 3,190万円 ![]() |
||||
|---|---|---|---|---|---|
| 所在地 | 静岡県浜松市中央区高丘北1丁目 108-1の一部、108-19 ※地図上でピンがズレる可能性がございます。 この地域周辺の物件を見る |
土地面積 | 110.69m² (33.48坪) | 建物面積 | 93.95u |
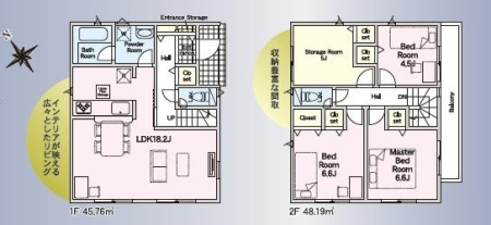
| 築年月 | 2026年6月築 | 間取り | 3SLDK (LDK18.2/洋室6.6/洋室6.6/洋室5/S4.5) | ||
| 交通 |
JR東海道本線 浜松 高丘郵便局 バス38分 停歩2分
|
||||
電話をかける(携帯・PHS可)
0120-684-021
「ホームページを見た」とお伝え下さい。
問合せ番号の下4桁をお伝え下さい
RHS-163701-5710
| 特徴 |
|
|---|---|
| セールスコメント | 瑞穂小学校:約970m(徒歩13分) 開成中学校:約570m(徒歩8分) |
| 採光面 | 南西 | 構造/階数 | 木造/地上2階建 |
|---|---|---|---|
| 建ぺい率 | 70(%) | 容積率 | 200(%) |
| 駐車場 | 有 | 現況/引渡し | 建築中/- |
| 土地権利 | 所有権 | 私道負担面積 | - |
| 接道状況 | 接道: 東南 9.8m 公道 道路幅: 5.9m 接道: 南西 8.6m 公道 道路幅: 6m |
用途地域 |
第一種住居地域
|
| セットバック | - | 法令上の制限 | 宅地造成工事規制区域 |
| 地目 | 宅地 | 地勢 | 平坦 |
| 建築確認番号 | 第R08SHC103450号 | 都市計画 | 市街化区域 |
| 取引態様 | 仲介 | ||
| 情報更新日 | 2026年04月28日 | 次回更新日 | 2026年05月12日 |
電話をかける(携帯・PHS可)
0120-684-021
「ホームページを見た」とお伝え下さい。
問合せ番号の下4桁をお伝え下さい
RHS-163701-5710
| 価格 | 万円 | ||
|---|---|---|---|
| 年利率 | % |
||
| ボーナス払い | 返済年数 | ||
| 頭金 | 直接入力する | 万円 | |

毎月のご返済額 |
ボーナス(×年2回) |
物件価格3,190万円 |
![]() |
![]() |
浜松市中央区高丘北1丁目 108-1の一部、108-19
3190万円〜3290万円 |
電話をかける(携帯・PHS可)
0120-684-021
「ホームページを見た」とお伝え下さい。
問合せ番号の下4桁をお伝え下さい
RHS-163701-5710
〒434-0042
静岡県浜松市浜名区小松3180番地
TEL:0120-684-021
FAX:053-584-0024
定休日:水曜・年末年始・GW
〒422-8058
静岡県静岡市駿河区中原364-1
TEL:0120-739-021
FAX:054-286-0061
定休日:火曜・水曜・年末年始・GW
〒438-0818
静岡県磐田市下万能152番地
TEL:0120-390-540
FAX:0538-39-0503
定休日:火曜・水曜・年末年始・GW
〒442-0005
愛知県豊川市本野ヶ原3丁目19-1
TEL:0120-028-021
FAX:0533-95-5022
定休日:火曜・水曜・年末年始・GW
〒425-0072
静岡県焼津市大住327-3
TEL:0120-850-021
FAX:054-629-0031
定休日:火曜・水曜・年末年始・GW
〒416-0931
静岡県富士市蓼原87-1
TEL:0120-900-021
FAX:0545-65-0061
定休日:火曜・水曜・年末年始・GW
歩いて生活しやすい高丘北エリア!
3SLDK、2階建て、駐車スペース2台♪
LDK18.2帖、広々としたリビング♪