| 価格 | 2,800万円値下がり ![]() |
||||
|---|---|---|---|---|---|
| 所在地 | 静岡県掛川市宮脇1丁目 16-7 ※地図上でピンがズレる可能性がございます。 この地域周辺の物件を見る |
土地面積 | 254.37m² (76.95坪) | 建物面積 | 236.46u |
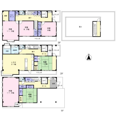
| 築年月 | 2003年6月築 | 間取り | 7SLDK (洋室17.6/和室8/LDK21/和室10/洋室11.5/洋室8.3/洋室8/洋室2.5/S2.5) | ||
| 交通 |
JR東海道本線 掛川 宮脇 バス9分 停歩3分
|
||||
電話をかける(携帯・PHS可)
0120-390-540
「ホームページを見た」とお伝え下さい。
問合せ番号の下4桁をお伝え下さい
RHS-163702-7605
| 特徴 |
|
|---|---|
| セールスコメント | 西山口小学校:約1080m(徒歩14分) 東中学校:約670m(徒歩9分) |
| 採光面 | 南 | 構造/階数 | S造/地上3階建 |
|---|---|---|---|
| 建ぺい率 | 60(%) | 容積率 | 150(%) |
| 駐車場 | 有 | 現況/引渡し | 空家/相談 |
| 土地権利 | 所有権 | 私道負担面積 | - |
| 接道状況 | 接道: 東 15.4m 公道 道路幅: 6m | 用途地域 |
第二種中高層住居専用地域
|
| セットバック | - | 法令上の制限 | 景観法;宅地造成工事規制区域 |
| 地目 | 宅地 | 地勢 | 平坦 |
| 建築確認番号 | 第H14確認建築静建住ま05443号 | 都市計画 | - |
| 取引態様 | 売主 | ||
| 情報更新日 | 2026年04月18日 | 次回更新日 | 2026年05月02日 |
電話をかける(携帯・PHS可)
0120-390-540
「ホームページを見た」とお伝え下さい。
問合せ番号の下4桁をお伝え下さい
RHS-163702-7605
| 価格 | 万円 | ||
|---|---|---|---|
| 年利率 | % |
||
| ボーナス払い | 返済年数 | ||
| 頭金 | 直接入力する | 万円 | |

毎月のご返済額 |
ボーナス(×年2回) |
物件価格2,800万円 |
電話をかける(携帯・PHS可)
0120-390-540
「ホームページを見た」とお伝え下さい。
問合せ番号の下4桁をお伝え下さい
RHS-163702-7605
〒434-0042
静岡県浜松市浜名区小松3180番地
TEL:0120-684-021
FAX:053-584-0024
定休日:水曜・年末年始・GW
〒422-8058
静岡県静岡市駿河区中原364-1
TEL:0120-739-021
FAX:054-286-0061
定休日:火曜・水曜・年末年始・GW
〒438-0818
静岡県磐田市下万能152番地
TEL:0120-390-540
FAX:0538-39-0503
定休日:火曜・水曜・年末年始・GW
〒442-0005
愛知県豊川市本野ヶ原3丁目19-1
TEL:0120-028-021
FAX:0533-95-5022
定休日:火曜・水曜・年末年始・GW
〒425-0072
静岡県焼津市大住327-3
TEL:0120-850-021
FAX:054-629-0031
定休日:火曜・水曜・年末年始・GW
〒416-0931
静岡県富士市蓼原87-1
TEL:0120-900-021
FAX:0545-65-0061
定休日:火曜・水曜・年末年始・GW
外壁補修・塗装完了しました!内装は自由にリフォームしてください!
鉄骨造3階建、エレベーター付き!2世帯住宅や作業場・事務所兼住宅としても使用可能!