島田市旭3丁目 第3期 新築全1棟 1号棟 静岡県島田市旭3丁目 31-11|2,899万円の新築一戸建て|分譲住宅や新築物件|センチュリー21中央不動産

TOPページ >
物件検索 >
新築一戸建て
>
島田市
>
JR東海道本線
>
島田市旭3丁目 第3期 新築全1棟 1号棟

新築一戸建て

島田市旭3丁目 第3期 新築全1棟 1号棟
お気に入り
価格 2,899万円値下がり ローンシミュレーション
所在地 静岡県島田市旭3丁目 31-11
※地図上でピンがズレる可能性がございます。
この地域周辺の物件を見る
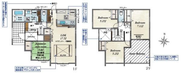
土地面積 166.98m² (50.51坪) 建物面積 113.02u
築年月 2026年3月築 間取り 4LDK (LDK17.5/和室5/洋室7.12/洋室5.25/洋室5.25)
交通
JR東海道本線 六合 徒歩25分
ここがおすすめ

長期優良住宅♪
制震ダンパー標準装備!
デザイン性豊かな建売住宅です!


  • 間取り図 暮らしに嬉しい間取をご紹介♪お気軽にお問い合わせください(^_^)
  • 区画図 車4台駐車可能※車種によります。
  • その他 キッチンシンク。
※写真・イラストはイメージです。実際の仕様が画像と異なる場合がございますので、ご注意ください。
  • その他 システムキッチンにビルドインタイプの食器洗浄乾燥機を設置しています。
※写真・イラストはイメージです。実際の仕様が画像と異なる場合がございますので、ご注意ください。
  • その他 TVモニターインターホン。とつぜんの来訪者も、顔が見えるので安心できます。
※写真・イラストはイメージです。実際の仕様が画像と異なる場合がございますので、ご注意ください。
  • その他 浴室換気乾燥機を設置。
※写真・イラストはイメージです。実際の仕様が画像と異なる場合がございますので、ご注意ください。
  •  揺れに耐えるだけではなく、揺れ自体を低減しダメージを抑える制震技術で地震に強い家を実現!
  •  断熱等性能等級5、一次エネルギー消費量等級6(ZEH水準)を全棟で取得☆
  •  長期優良住宅とは、良い家を作って、きちんと手入れをして、長く大切に使うことを目的とした認定制度で、
国が定めた7つの基準を満たしたした住宅が長期優良住宅として認定されます。
  •  住宅性能評価書は住宅の成績表。10分野の評価項目があり、どなたにも住宅性能が簡単に評価できます。
  •  快適に暮らすことができる住宅の品質を長期にわたり維持するには、定期的な点検を実施することが重要です。
お引渡し後最大10回の無料定期点検と最大60年間の品質保証を実施しています。
  • 周辺環境 【小学校】島田市立島田第五小学校:820u
  • 周辺環境 【中学校】島田市立島田第二中学校:2930u
お問い合わせ、資料請求、見学のお申し込みはこちらから

電話をかける(携帯・PHS可)
0120-850-021
「ホームページを見た」とお伝え下さい。

問合せ番号の下4桁をお伝え下さい
RHS-163705-550

内見予約
お問合せ

セールスポイント

特徴
  • プライスダウン
  • カースペース2台以上
  • 浴室乾燥機
  • ガスコンロ
  • コンロ三口
  • システムキッチン
  • カウンターキッチン
  • シャンプードレッサー
  • 追い焚き
  • バルコニー
  • TVドアホン
  • 都市ガス
  • カースペース4台
セールスコメント 島田第五小学校:約820m(徒歩11分)第二中学校:約2930m(徒歩37分)

物件概要

採光面 構造/階数 木造/地上2階建
建ぺい率 60(%) 容積率 200(%)
駐車場 現況/引渡し 新築/即時
土地権利 所有権 私道負担面積 -

接道状況 接道: 南 公道 道路幅: 4m 用途地域
第一種住居地域
セットバック - 法令上の制限 景観法
地目 宅地 地勢
建築確認番号 第R07SHC123343号 都市計画 -
取引態様 仲介
情報更新日 2026年05月08日 次回更新日 2026年05月22日
※各種情報と差異がある場合は現況優先となります
お問い合わせ、資料請求、見学のお申し込みはこちらから

電話をかける(携帯・PHS可)
0120-850-021
「ホームページを見た」とお伝え下さい。

問合せ番号の下4桁をお伝え下さい
RHS-163705-550

内見予約
お問合せ

この物件でローンシミュレーションする

価格 万円
年利率
ボーナス払い 返済年数
頭金 直接入力する 万円

毎月のご返済額

ボーナス(×年2回)

物件価格

2,899万円
※返済金額はあくまでも目安です。

電話をかける(携帯・PHS可)
0120-850-021
「ホームページを見た」とお伝え下さい。

問合せ番号の下4桁をお伝え下さい
RHS-163705-550

内見予約
お問合せ

お問い合わせ

お問い合わせ内容
お問合せ内容必須
【備考欄】
詳細な見学ご希望時間、ご質問、ご希望条件などがございましたらお聞かせ下さい。
(2000文字以内)
お客様情報
お名前必須
連絡先必須 メールアドレス

※ご記入いただいたメールアドレス宛てに、お問合せ内容の確認メールをお送りいたします。
※Yahoo!メールなどのフリーメールをご利用の場合、迷惑メールフォルダに入る場合があります。
 迷惑メールのフォルダ・設定等をご確認下さい。
電話番号
FAX(任意)
※ご入力いただいたお客さまの個人情報は、「個人情報の取扱いについて」に基づき適正に取り扱います。必ずお読みになり、同意の上お問い合わせください。

お気軽にお問い合わせください

0120-850-021
物件番号 RHS-163705-550
※「ホームページを見た」
とお伝え下さい。
  • 住所から探す
  • 学区から探す

会社情報
COMPANY

センチュリー21浜松店

センチュリー21
中央不動産株式会社 浜松店

〒434-0042
静岡県浜松市浜名区小松3180番地
TEL:0120-684-021
FAX:053-584-0024
定休日:水曜・年末年始・GW

センチュリー21中央不動産静岡店

センチュリー21
中央不動産株式会社 静岡店

〒422-8058
静岡県静岡市駿河区中原364-1
TEL:0120-739-021
FAX:054-286-0061
定休日:火曜・水曜・年末年始・GW

センチュリー21磐田店

センチュリー21
中央不動産株式会社 磐田店

〒438-0818
静岡県磐田市下万能152番地
TEL:0120-390-540
FAX:0538-39-0503
定休日:火曜・水曜・年末年始・GW

センチュリー21豊川・豊橋店

センチュリー21
中央不動産株式会社 豊川・豊橋店

〒442-0005
愛知県豊川市本野ヶ原3丁目19-1
TEL:0120-028-021
FAX:0533-95-5022
定休日:火曜・水曜・年末年始・GW

センチュリー21焼津・藤枝店

センチュリー21
中央不動産株式会社 焼津・藤枝店

〒425-0072
静岡県焼津市大住327-3
TEL:0120-850-021
FAX:054-629-0031
定休日:火曜・水曜・年末年始・GW

センチュリー21富士店

センチュリー21
中央不動産株式会社 富士店

〒416-0931
静岡県富士市蓼原87-1
TEL:0120-900-021
FAX:0545-65-0061
定休日:火曜・水曜・年末年始・GW

会社概要
お知らせ
お客様の声

PAGE TOP

PAGE TOP