| 価格 | 2,800万円値下がり ![]() |
||||
|---|---|---|---|---|---|
| 利回り | 6.42% | 満室時想定 年収/月収 |
180万円 / - | ||
| 所在地 | 静岡県掛川市宮脇1丁目 16-7 ※地図上でピンがズレる可能性がございます。 この地域周辺の物件を見る |
築年月 | 2003年6月築 | ||
| 交通 |
JR東海道本線 掛川 宮脇 バス9分 停歩3分
|
建ぺい率 | 60 % | 容積率 | 150 % |
電話をかける(携帯・PHS可)
0120-684-021
「ホームページを見た」とお伝え下さい。
問合せ番号の下4桁をお伝え下さい
RHS-163701-5602
| 特徴 |
|
|---|---|
| セールスコメント | 西山口小学校:約1080m(徒歩14分) 東中学校:約670m(徒歩9分) |
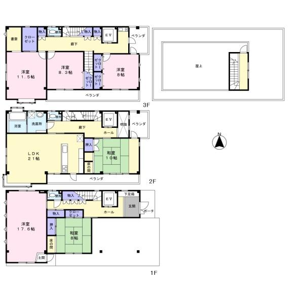
| 階数 | 地上3階建 | 用途地域 | 第二種中高層住居専用地域 |
|---|---|---|---|
| 構造 | S造 | ||
| 間取り | 7SLDK | ||
| 土地面積 | 254.37m² (76.95坪) | 建物面積 | u |
| テラス面積 | - | 専用庭面積 | - |
| 現況 | 空家 | 引渡し | 相談 |
| 土地権利 | 所有権 | 採光面 | 南 |
| 駐車場 | 有 | 駐輪場 | - |
| 法令上の制限 | 景観法;宅地造成工事規制区域 | 都市計画 | - |
| 地目 | 宅地 | 地勢 | 平坦 |
| 接道状況 | 接道: 東 15.4m 公道 道路幅: 6m | 総戸数 | - |
| 私道負担面積 | - | セットバック | - |
| 建築確認番号 | 第H14確認建築静建住ま05443号 | ||
| 取引態様 | 売主 | ||
| 情報更新日 | 2026年04月18日 | 次回更新日 | 2026年05月02日 |
電話をかける(携帯・PHS可)
0120-684-021
「ホームページを見た」とお伝え下さい。
問合せ番号の下4桁をお伝え下さい
RHS-163701-5602
〒434-0042
静岡県浜松市浜名区小松3180番地
TEL:0120-684-021
FAX:053-584-0024
定休日:水曜・年末年始・GW
〒422-8058
静岡県静岡市駿河区中原364-1
TEL:0120-739-021
FAX:054-286-0061
定休日:火曜・水曜・年末年始・GW
〒438-0818
静岡県磐田市下万能152番地
TEL:0120-390-540
FAX:0538-39-0503
定休日:火曜・水曜・年末年始・GW
〒442-0005
愛知県豊川市本野ヶ原3丁目19-1
TEL:0120-028-021
FAX:0533-95-5022
定休日:火曜・水曜・年末年始・GW
〒425-0072
静岡県焼津市大住327-3
TEL:0120-850-021
FAX:054-629-0031
定休日:火曜・水曜・年末年始・GW
〒416-0931
静岡県富士市蓼原87-1
TEL:0120-900-021
FAX:0545-65-0061
定休日:火曜・水曜・年末年始・GW
外壁補修・塗装、外構工事完了後の引渡し!自由にリフォームしてください!
鉄骨造3階建エレベーター付き!事務所や作業場兼住宅としても使用可!
ぜひ現地をご覧ください!