新築一戸建て・中古一戸建て3000万円以上|浜松市・磐田市・静岡市・焼津市・藤枝市・豊川市・豊橋市の不動産はセンチュリー21中央不動産

TOPページ >
物件検索 >
不動産情報一覧

新築一戸建て・中古一戸建て3000万円以上の検索結果一覧

種別で絞り込む 新築一戸建て 中古一戸建て 中古マンション 土地 投資用
75件中1〜20件を表示
表示件数 並び順
新築一戸建て

♪当店でご成約のお客様へリビングエアコンプレゼント♪ ■名鉄豊川線「八幡」駅徒歩圏内!商業施設や公共施設が充実♪ ■家計に優しい都市ガス&カースペース2台確保

価格 3,030万円 値下がり
所在地 愛知県豊川市諏訪西町1丁目 101
交通 名鉄豊川線 八幡駅 徒歩12分
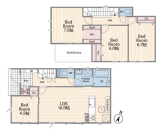
間取り 4LDK
建物面積 105.18u 土地面積 122.79u
築年月 2026年4月 建物構造 一戸建て/木造
3枚  
新築一戸建て

家族が自然につながるリビングスルー階段。 ファミリークローゼット・WIC・SCで収納も充実。 インナーバルコニーと並列3台駐車で快適な暮らしを。

価格 3,030万円 
所在地 静岡県浜松市中央区寺脇町 981
交通 JR東海道本線 浜松駅 バス15分停歩1分
間取り 4LDK
建物面積 107.23u 土地面積 239.62u
築年月 2026年6月 建物構造 一戸建て/木造
2枚  
中古一戸建て

落ち着いた住宅地として人気の「泉」に新築誕生。 交通量の少ない穏やかな住環境で、子育て世帯にも安心の立地。 住環境を重視してお探しの方に、ご覧いただきたい一邸です。

価格 3,050万円 値下がり
所在地 静岡県浜松市中央区泉4丁目 22-8
交通 JR東海道本線 浜松駅 バス26分停歩5分
間取り 4LDK
建物面積 104.74u 土地面積 125.60u
築年月 2025年10月 建物構造 一戸建て/木造
24枚  
中古一戸建て

築8年の築浅で綺麗な物件! 太陽光パネル付き。 収納豊富で広々とした間取です。 ご見学可能です♪希望日をお申し付けください。 幸和ハウジング施工。

価格 3,080万円 値下がり
所在地 静岡県浜松市中央区貴平町 687-1
交通 JR東海道本線 浜松駅 バス32分停歩6分
間取り 4LDK
建物面積 109.3u 土地面積 255.15u
築年月 2017年10月 建物構造 一戸建て/木造
15枚  
新築一戸建て

◆物件の特長◆ ●南東接道で採光豊か、清々とした角地。 駐車も並列で3台可能です。※車種による

価格 3,080万円 
所在地 静岡県静岡市清水区江尻台町 130番6
交通 JR東海道本線 清水駅 徒歩19分
間取り 4LDK
建物面積 102.67u 土地面積 121.64u
築年月 2026年5月 建物構造 一戸建て/木造
3枚  
新築一戸建て

4LDK、2階建て! 各居室収納スペースあり! 2階にはウォークインクローゼット付き。

価格 3,080万円 
所在地 静岡県袋井市三門町 10-7
交通 JR東海道本線 袋井駅 徒歩5分
間取り 4LDK
建物面積 97.2u 土地面積 233.71u
築年月 2026年7月 建物構造 一戸建て/木造
10枚  
新築一戸建て

全室フローリング、4LDK、平屋建て! LDKはゆとりの19帖、WIC、パントリー付き♪ 駐車スペース3台!

価格 3,080万円 
所在地 愛知県豊川市伊奈町正庵 89-43
交通 JR東海道本線 西小坂井駅 徒歩11分
間取り 4LDK
建物面積 96.06u 土地面積 418.08u
築年月 2026年6月 建物構造 一戸建て/木造
6枚  
新築一戸建て

4LDK、2階建て、シューズインクローク、ウォークインクローゼット付き! 駐車スペース3台! 長期優良住宅認定、ZEH水準の次世代住宅!

価格 3,080万円 
所在地 愛知県豊川市国府町下河原 23-1
交通 名鉄名古屋本線 国府駅 徒歩13分
間取り 4LDK
建物面積 99.78u 土地面積 184.80u
築年月 2025年11月 建物構造 一戸建て/木造
13枚  
新築一戸建て

ウォークインクローゼット、シューズクローク、パントリー付き、4LDK,2階建て! 南面道路に接道♪

価格 3,080万円 
所在地 静岡県浜松市中央区小池町 753-4
交通 JR東海道本線 浜松駅 バス12分停歩15分
間取り 4LDK
建物面積 105.16u 土地面積 113.91u
築年月 2026年6月 建物構造 一戸建て/木造
22枚  
新築一戸建て

スーパーやコンビニが徒歩5分圏内!駐車2台可能!

価格 3,090万円 
所在地 静岡県静岡市清水区高橋5丁目 858
交通 JR東海道本線 清水駅 徒歩29分
間取り 4SLDK
建物面積 100.4u 土地面積 123.94u
築年月 2026年5月 建物構造 一戸建て/木造
3枚  
 
新築一戸建て

インテリアが映える広々としたリビング、3台以上駐車可能なカースペース

価格 3,090万円 
所在地 静岡県浜松市浜名区平口 2380、2382-1、他2筆
交通 JR東海道本線 浜松駅 バス45分停歩6分
間取り 4LDK
建物面積 101.25u 土地面積 187.00u
築年月 2026年6月 建物構造 一戸建て/木造
2枚  
新築一戸建て

♪当店でご成約のお客様へリビングエアコンプレゼント♪ 心地よい開放的なLDKは広々の約18.63帖 収納力豊富なWICは1室に配置・全居室収納付き!

価格 3,130万円 値下がり
所在地 愛知県豊川市諏訪西町1丁目 101
交通 名鉄豊川線 八幡駅 徒歩12分
間取り 4LDK
建物面積 105.6u 土地面積 123.87u
築年月 2026年4月 建物構造 一戸建て/木造
3枚  
新築一戸建て

全室フローリングの4LDK、平屋建て! ウォークインクローゼット3部屋、トイレ2ヶ所付き♪

価格 3,150万円 
所在地 静岡県磐田市池田 316-1
交通 JR東海道本線 豊田町駅 徒歩45分
間取り 4LDK
建物面積 96.05u 土地面積 439.87u
築年月 2026年4月 建物構造 一戸建て/木造
7枚  
新築一戸建て

駅徒歩10分で通勤通学もスムーズ。全室収納に加えWICも完備した5LDK。広々空間で叶える、家族みんなが笑顔になるゆとりの新生活を。

価格 3,170万円 値下がり
所在地 愛知県豊川市赤坂町御園 219
交通 名鉄名古屋本線 名電赤坂駅 徒歩11分
間取り 5LDK
建物面積 105.39u 土地面積 169.18u
築年月 2026年4月 建物構造 一戸建て/木造
3枚  
中古一戸建て

\平家のような中古住宅/ 一昨年にインスペクション実施済み♪状態が良くすぐに住めそうな物件です!

価格 3,180万円 値下がり
所在地 静岡県静岡市葵区城北2丁目 23-12
交通 JR東海道本線 静岡駅 バス26分停歩8分
間取り 7DK
建物面積 175.51u 土地面積 312.56u
築年月 1984年4月 建物構造 一戸建て/木造
27枚  
新築一戸建て

広々約19.5帖LDK×充実収納の4LDK!パントリーやシューズクローク、WICなど適材適所の収納でスッキリとした暮らしが叶う!BELS/省エネ基準適合認定。

価格 3,180万円 
所在地 静岡県浜松市中央区西ケ崎町 208-1
交通 遠州鉄道 遠州小松駅 徒歩8分
間取り 4LDK
建物面積 107.45u 土地面積 122.27u
築年月 2026年6月 建物構造 一戸建て/木造
4枚  
新築一戸建て

全室フローリング、4LDK、平屋建て! 敷地はゆとりの約69坪、駐車スペース3台!

価格 3,180万円 
所在地 愛知県豊川市伊奈町佐脇原 500-34
交通 名鉄名古屋本線 伊奈駅 徒歩20分
間取り 4LDK
建物面積 96.06u 土地面積 228.86u
築年月 2026年5月 建物構造 一戸建て/木造
4枚  
新築一戸建て

全室フローリング4LDK+ウォークインクローゼット×2、4LDK、2階建て! 駐車スペース3台あり! バルコニーが2部屋に付いています♪

価格 3,180万円 
所在地 愛知県豊川市下長山町堺 65-12
交通 JR飯田線 牛久保駅 徒歩13分
間取り 4LDK
建物面積 100.62u 土地面積 132.24u
築年月 2026年6月 建物構造 一戸建て/木造
7枚  
新築一戸建て

全室フローリング、4LDK、平屋建て! ウォークインクローゼット2ヶ所、パントリー付き♪ 駐車スペース3台!

価格 3,180万円 
所在地 愛知県豊川市伊奈町正庵 89-43
交通 JR東海道本線 西小坂井駅 徒歩11分
間取り 4LDK
建物面積 95.65u 土地面積 296.95u
築年月 2026年6月 建物構造 一戸建て/木造
6枚  
新築一戸建て

全室フローリング、4LDK、平屋建て! ウォークインクローゼット、パントリー付き♪ 敷地はゆとりの約81坪!

価格 3,180万円 
所在地 愛知県豊川市赤坂台 1425
交通 名鉄名古屋本線 名電赤坂駅 徒歩22分
間取り 4LDK
建物面積 96.06u 土地面積 267.97u
築年月 2026年6月 建物構造 一戸建て/木造
6枚  
表示件数 並び順


  • 住所から探す
  • 学区から探す

会社情報
COMPANY

センチュリー21浜松店

センチュリー21
中央不動産株式会社 浜松店

〒434-0042
静岡県浜松市浜名区小松3180番地
TEL:0120-684-021
FAX:053-584-0024
定休日:水曜・年末年始・GW

センチュリー21中央不動産静岡店

センチュリー21
中央不動産株式会社 静岡店

〒422-8058
静岡県静岡市駿河区中原364-1
TEL:0120-739-021
FAX:054-286-0061
定休日:火曜・水曜・年末年始・GW

センチュリー21磐田店

センチュリー21
中央不動産株式会社 磐田店

〒438-0818
静岡県磐田市下万能152番地
TEL:0120-390-540
FAX:0538-39-0503
定休日:火曜・水曜・年末年始・GW

センチュリー21豊川・豊橋店

センチュリー21
中央不動産株式会社 豊川・豊橋店

〒442-0005
愛知県豊川市本野ヶ原3丁目19-1
TEL:0120-028-021
FAX:0533-95-5022
定休日:火曜・水曜・年末年始・GW

センチュリー21焼津・藤枝店

センチュリー21
中央不動産株式会社 焼津・藤枝店

〒425-0072
静岡県焼津市大住327-3
TEL:0120-850-021
FAX:054-629-0031
定休日:火曜・水曜・年末年始・GW

センチュリー21富士店

センチュリー21
中央不動産株式会社 富士店

〒416-0931
静岡県富士市蓼原87-1
TEL:0120-900-021
FAX:0545-65-0061
定休日:火曜・水曜・年末年始・GW

会社概要
お知らせ
お客様の声

お客様へ

新築一戸建て・中古一戸建て 不動産情報はセンチュリー21中央不動産にお任せください!センチュリー21中央不動産では不動産情報を豊富にご用意しております。 新築戸建て・中古戸建て・土地・マンションをお探しの方はぜひセンチュリー21中央不動産までお問い合わせください。信頼あるスタッフがあなたのマイホーム探しのお手伝いをさせて頂きます。

PAGE TOP

PAGE TOP